Back to Industrial






Pump Room Reticulation Asbuilt







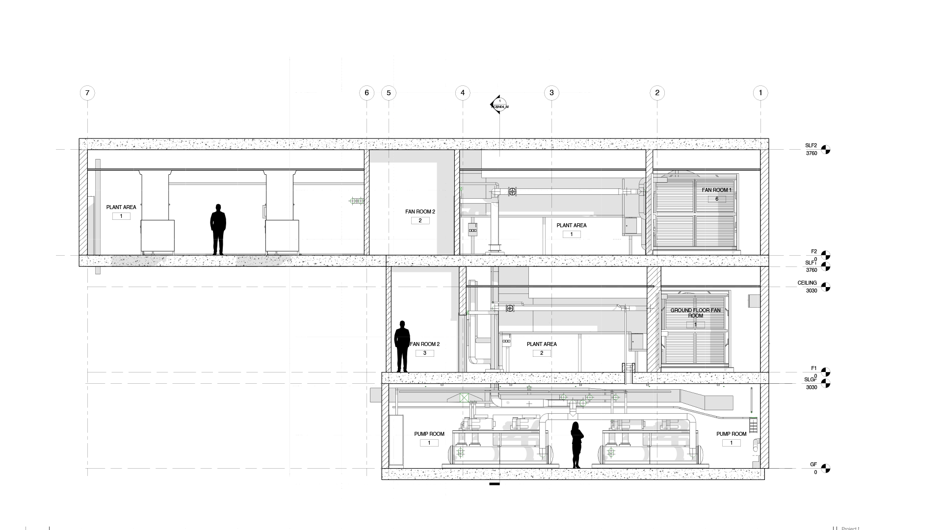
Detailed as-built modeling of a complex multi story pump room's reticulation system for clash detection and future maintenance planning.
As-Built
MEP
Laser Scanning
Industrial







Detailed as-built modeling of a complex multi story pump room's reticulation system for clash detection and future maintenance planning.