Back to Industrial








Factory Layout Optimization









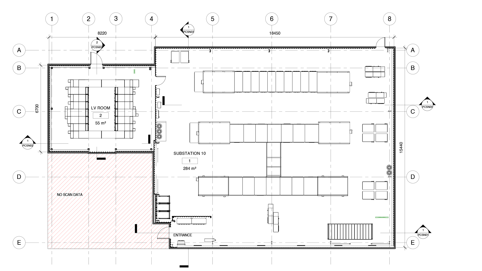
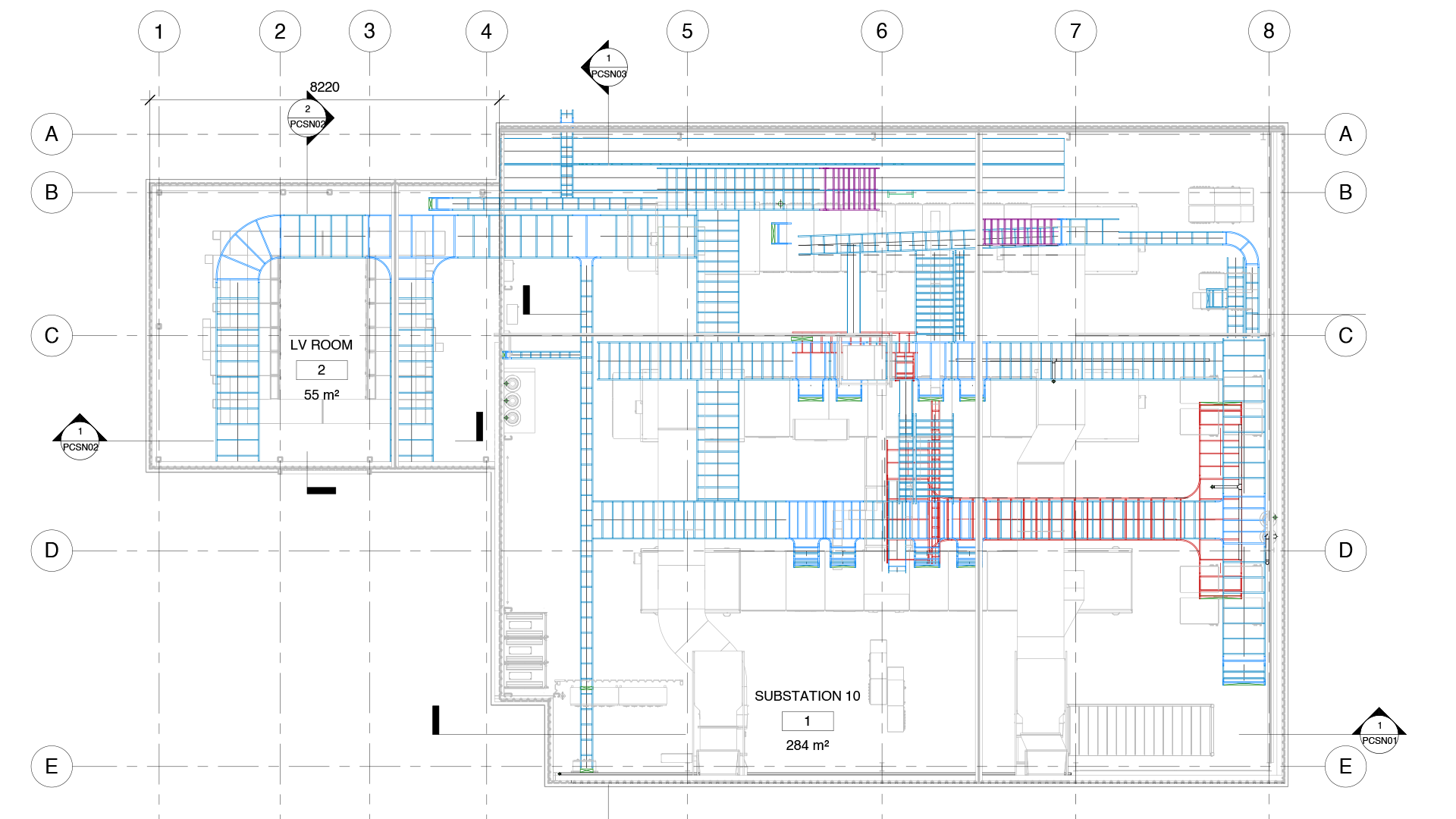
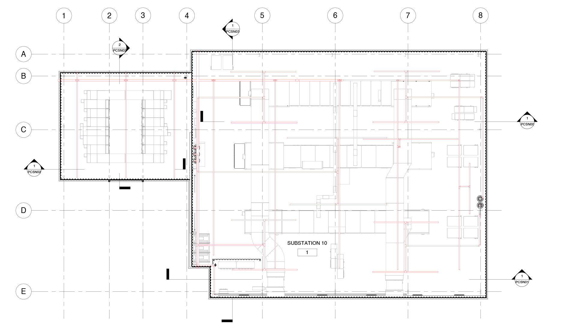
Comprehensive BIM model creation for a large-scale manufacturing facility to aid in equipment placement and workflow optimization.
BIM Modeling
Industrial
Facility Management









Comprehensive BIM model creation for a large-scale manufacturing facility to aid in equipment placement and workflow optimization.