Back to Industrial





Cooling Tower Plant Documentation






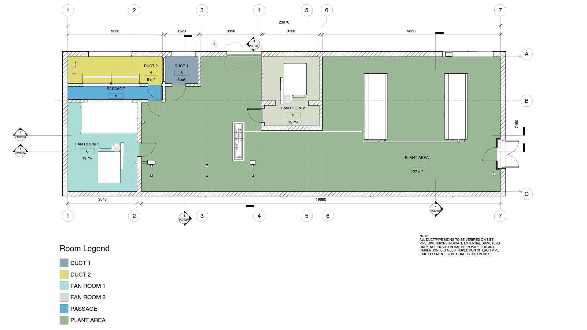
High-accuracy scanning and LOD 400 BIM modeling of a HVAC plant for maintenance and upgrade planning.
Laser Scanning
Infrastructure
Digital Twin






High-accuracy scanning and LOD 400 BIM modeling of a HVAC plant for maintenance and upgrade planning.